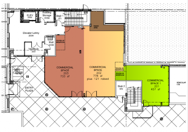
COMMERCIAL The UPside incorporates ground level commercial space with space size ranging between 460 and 2,500ft2
Layout includes spacious and accessible frontage with street level and building parking. The space allows for a “spill-out” plaza to curb-side, ideal for retail and restaurants.
For information, please contact Urchin Property Management Inc.
Contact Us
